Ideal Standard ProSys 120M inštalačný modul bez tlačidla R009467
Séria: ProSys
Náš najpredávanejší podomietkový modul - obľúbená alternatíva ku Geberit Duofix.
Nutné prichytenie dozadu do muriva alebo do ľahkej sadrokartónovej priečky.
Výškovo nastaviteľný ( 115-135 cm ).
Inštalačný modul ProSys 120M podomietkový bez tlačidla
Top voľba pre Vašu kúpeľňu. Dokonalá alternatíva k známemu Geberit Duofix.
Dvojčinné splachovanie prednastavené na 6/3 litre vody, možnosť úpravy na 4/2 alebo 7/3 litre vody.
Úsporná technológia SmartValve (môže ušetriť priemernej domácnosti až 9 l za deň), CE označenie EN 14055 CL1.
Tichý ventil podľa štandardnej kategórie NF akustická trieda 1.
Údržba nádržky bez nutnosti použitia špeciálneho náradia.
Možné použitie s mechanickým, pneumatickým alebo elektronickým ovládacím tlačidlom Oleas.
Možno kombinovať s hygienickým splachovacím systémom SmartFlush.
Inštalácia pred pevnú stenu alebo do ľahkej priečky zo sadrokartónu.
Ovládanie spredu.
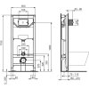
Minimálna inštalačná hĺbka 150 mm.
Samonosný rám z oceľových profilov s výškovo nastaviteľnými pätkami (0-200 mm), s antikoróznou ochranou a ochranou proti poškriabaniu.
Odpadové koleno hĺbkovo nastaviteľné.
Testovaná nosnosť rámu pre zaťaženie 400 kg.
Jednoduchá a rýchla inštalácia vďaka systému EasyFix.
Pre závesné WC misy s montážnymi rozmermi (vzdialenosť nosných skrutiek) 180 alebo 230 mm.
Podomietková nádržka z polypropylénu (PP), ktorý je veľmi odolný k tepelnému namáhaniu.
Dodávané s anti-kondenzačným obložením.
Dôležité: Pre kombináciu s pneumatickými tlačidlami je nutné dokúpiť set pre inštaláciu.
Tip: Ak neviete, aká vysoká bude podlaha vašej novej kúpeľne, resp. v akej výške bude potrebné osadiť WC misu, zvážte alternatívu 3H (R009567) s pomocným nastaviteľným rámom (3 možnosti výškového osadenia).

Dodatočné parametre
| Kategória: | Splachovacie systémy |
|---|---|
| Hmotnosť: | 16 kg |
| Výška: | 1150-1350 mm |
| Šírka: | 500 mm |
Ako si vybrať ten správny podomietkový WC modul?
Hodnotenie tovaru
Buďte prvý, kto napíše príspevok k tejto položke.
Diskusia
Buďte prvý, kto napíše príspevok k tejto položke.
-svg-2.png)